污水液位计
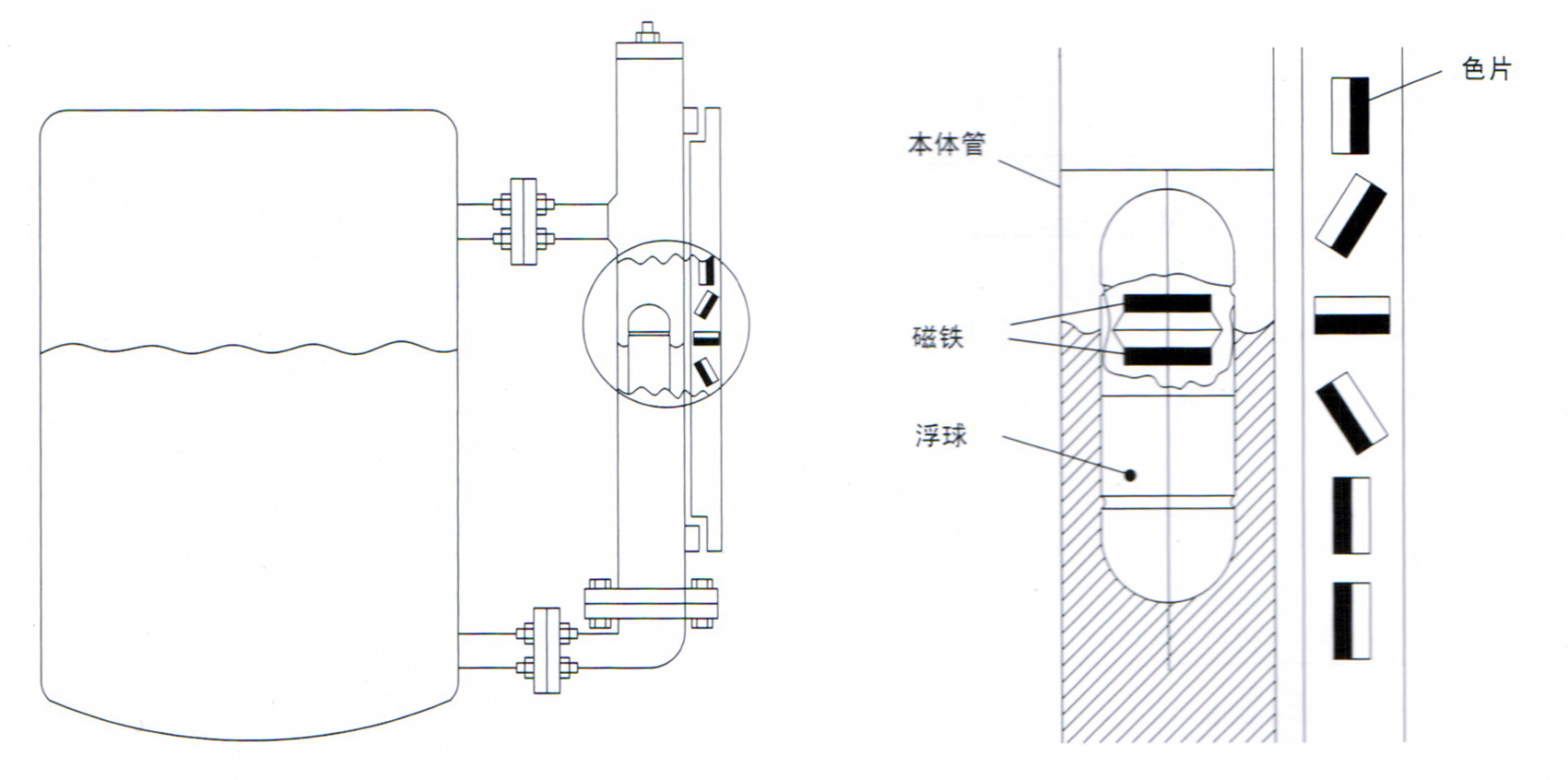
UHZ系列污水液位计主要用于石油、化工、炼油、医药、食品、酒业、饮料等行业中各类储液罐、分离罐、反应罐、发酵罐内液体、油品、液化气、强酸碱液、弱酸碱液、发电厂锅炉汽包、除氧器、疏水箱、回水箱、高低压加热器、凝结器、蒸发器及其他压力容器内与1Cr18Ni9Ti 、316L。1Cr18Ni9Ti+PTFE(内衬聚四氟乙烯)及与PVC塑料相容的介质的液位测量与显示、多点液位开关输出、电远传(4~20mA、0~10mA DC)输出。安装形式有标准型、顶装型、浮球液位计、保温型、防霜型等供您选择使用。工作原理及基本结构 UHZ 系列污水液位计是根据浮力和磁性原理,利用测量筒内磁性浮子随被测液面的升高或降低,通过磁场的吸引力,使测量筒外部显示器上的双色翻柱随之翻转实现了显示被测液面位置的目的。污水液位计以红色来指示液体部分,以白色来指示无液或汽体部分,也可选择白色表示液体部分红色表示无液或汽体部分。

厂家价格:
| 价格 | ¥ 400.00~49800.00元 |
| 起批量 | ≥1 台 |
规格参数:
| 加工定制 | 否 | 品牌 | 华云 | 型号 | LMK 458H |
| 类型 | 投入式液位变送器 | 测量范围 | 0-200mH20 | 测量精度 | 0.1%FSO |
| 材质 | 不锈钢 | 电源 | 0-20mA | 输出信号 | 20(mA) |
| 测量介质 | 污水污泥 | 是否跨境货源 | 否 | 分辨率 | 0.001 |
污水液位计结构及原理
1、基本型:
根据浮力原理,浮子在测量管内随液位的升降而上、下移动,浮子内的磁钢通过耦合作用,驱动红、白色翻柱翻转180°,液位上升时翻柱由白色转为红色,下降时由红色转为白色,从而实现液位指示。
2、电远传:
在浮子液位计上安装变送器,通过浮子上下移动,经磁耦合作用使导杆内测量元件依次动作,获得电阻信号变化,转换成0~10mA或4~20mA的标准信号输出,与显示仪表或计算机连接,达到远传目的。
3、上下限开关输出:
在液位计立管上由用户设定上、下限位置安装控制器,控制器内带有自保持作用的舌簧开关,利用磁性浮子随液位移动使簧片开关动作时,实现报警或限位控制。
系统构成及接线
1、上下限开关输出:
由具有自保持作用的舌簧开关和转换器组成,舌簧开关和转换器分别安装于现场和控制室,由转换器提供三对触点开关。
2、电远传:
由测量单元和变送单元两部分组成。
3、本安防爆:
a带本安防爆,上、下限开关输出型
防爆开关由舌簧开关和带继电器触点的安全栅组成,可向用户直接提供一对常开或常闭触点。如用户需更多触点可特殊设计订货。
b带本安防爆远传型
适合使用于∏类电气设备(工厂用)、C级气体,***高表面温度组别T4(135℃)。
c使用注意事项
①变送器外壳设有外接地,用户使用时必须可靠接地。
②安全栅的使用应遵守有关使用说明内容。
③变送器与安全栅本安端的连接电缆为二芯屏蔽电缆,芯线截面积>0.5m,电缆允许分布电容为0.8μF

污水池液位计特点及适用场所:
污水池液位计十大技术优势
10) 于传统电容物位计:VIVO2020系列射频物位计是在传统的射频物位计基础上,增加了更强大的电路设计,能准确测量物位微小变化,并从根本上消除了传统射频物位计直流4-20mA输出中所叠加的射频干扰成分,保证了测量与输出信号的超稳定。由于采用射频技术和微机技术,解决了传统点式物位计温漂大、标定难、怕粘附的难题,克服了传统的机械式物位计容易产生的渗漏、断线等问题,可广泛用于各种液体、固体料位的报警(开关型无需接二次表,表体可带2个报警点)及联合控制。特别在高温、强腐蚀、强粘稠、重粉尘的环境下是其它类型的料位计所无法比拟的。
污水池液位计技术参数
|
供电电压 |
24VDC,100mA |
|
输 出 |
4~20mA(模拟、智能) |
|
通讯接口 |
RS485 |
|
精 度 |
± 0.5%FS (模拟) ± 0.25%FS (智能) |
|
灵 敏 度 |
≤ 0.1PF |
|
量 程 |
5~50000PF |
|
响应时间 |
5ms (模拟) 1ms(智能) |
|
***大负载 |
650 Ω(模拟) 450 Ω(智能) |
|
过载压力 |
65kg/cm2@38℃,34.5kg/cm2@232℃ |
|
介质温度 |
– 4 0℃~232℃(大于1 5 0℃需声明)(模拟、智能); -200~+232℃(超出此范围需特别定制)(开关) |
|
环境温度 |
-20 ℃~75 ℃(大于75 ℃需特别定制)(模拟、智能); |
|
防护等级 |
IP65 |
|
防爆等级 |
d Ⅱ BT6(可协议供货) |
|
传感器长度 |
杆式***长3.66m,缆式***长120m |
|
传感器材质 |
316 不锈钢;陶瓷;特氟隆 |
|
显示表头 |
0~100%(模拟) 4 位LCD (智能) |
|
安装方式 |
M33 X 2 螺纹或法兰 |
|
介质比重 |
L1(mm) |
|
|
防锈铝浮子(LF2) 及LF2氟塑包裹的浮子 |
不锈钢浮子 (1Cr18ni9Ti) |
|
|
0.45 |
463 |
|
|
0.55 |
286 |
|
|
0.65 |
210 |
|
|
0.75 |
166 |
|
|
0.85 |
140 |
340 |
|
0.95 |
120 |
260 |
|
≤1.0 |
113 |
220 |
|
DN20 |
PN(MPa) |
|
|
0.6~2.5 |
4.0~16.0 |
|
|
标准号 |
HG20593-97 |
HG20595-97 |
|
Dg15 |
Pg(Kgf/cm2) |
|
|
220 |
320 |
|
|
标准号 |
H12-0-2 |
H12-0-3 |
污水池液位计选型表:
|
型号 |
代码 |
说明 |
|
XT-UHZ |
污水池液位计 |
|
|
液位计类别 |
1 |
翻板指示(就地显示型) |
|
3 |
远传带翻板 |
|
|
液位计型号 |
0 |
基型 |
|
W |
保温型 |
|
|
D |
插入型 |
|
|
J |
耐腐型 |
|
|
S |
防霜型 |
|
|
Z |
保温耐腐型 |
|
|
Y |
插入耐腐型 |
|
|
报警控制 |
0 |
无报警 |
|
1 |
带上限 |
|
|
2 |
带下限 |
|
|
3 |
带上下限 |
|
|
浮子材质 |
P |
不锈钢 |
|
L |
防锈铝 |
|
|
T |
钛 |
|
|
S |
PVC塑料 |
|
|
F |
氟塑包裹 |
|
|
主体材质 |
P |
不锈钢 |
|
L |
防锈铝 |
|
|
T |
钛 |
|
|
S |
PVC塑料 |
|
|
F |
氟塑管 |
|
|
PF |
内衬四氟 |
|
|
PP |
内衬丙烯 |
|
|
PE |
内衬乙烯 |
|
|
连接法兰 |
见表一 |
|
|
介质温度 |
见表二 |
|
|
实际使用压力 |
见表三 |
|
|
介质比重 |
要注明 |
|
|
订货长度 |
要注明 |
|
|
/B |
防爆型 |
表一:
|
公称压力 |
Mpa |
Kgf/ cm2 |
|||||||||
|
0.6 |
1.0 |
1.6 |
2.5 |
4.0 |
6.3 |
10 |
16 |
220 |
320 |
||
|
代号 |
不锈钢 |
A |
B |
C |
D |
E |
F |
G |
H |
I |
J |
|
碳钢 |
a |
b |
C |
d |
e |
f |
g |
h |
i |
j |
|
|
法兰标准 |
HG20593-97 DN20(RF) |
HG20595-97(RF)DN20 |
H12-0-2 |
H12-0-3 |
|||||||
表二
|
介质温度 |
-40~0℃ |
≤80℃ |
≤100℃ |
≤150℃ |
≤300℃ |
≤350℃ |
≤480℃ |
|
代号 |
A |
B |
C |
D |
E |
F |
G |
表三:
|
使用压力 (实际) |
Mpa |
Kgf/ cm2 |
||||||||
|
0.6 |
1.0 |
1.6 |
2.5 |
4.0 |
6.3 |
10 |
16 |
220 |
320 |
|
|
代号 |
A |
B |
C |
D |
E |
F |
G |
H |
I |
J |
污水液位计应用须知
l、侧装式液位计与被测容器的上下分液管间***好各装一只截止阀门以便打开或关闭液位计;另一方面为维修液位计带来方便。在上下截止阀关闭时可打开液位计底部排污法兰或卸下排污螺钉,注入清水即可清洗液位计的主体。
2、安装液位计时,法兰中心线垂直度≤4‰,当液位计的测量范围大于3米时,需要考虑增加中间加固法兰(或朵攀)作固定支撑以增加强度。
3、配套远传液位变送器与二次仪表之间隔连线,要求连线的芯线截面面积应大于0.8mm。.与交流电源同路平行铺设时,至少应保持20厘米以上的间距,***好单独穿铁管铺设,或用屏蔽二芯电缆铺设,屏蔽层只能一端接地。
4、选用液位控制器,其触点容量均以阻性负载设计,如用非阻性或大力功率负载则要用中间继电器转换。
5、对液体介质中含有悬浮杂质的亲磁物质的场合,不宜使用本液位计,因这些杂质会对浮子组件造成卡阻。
6、外形结构中的盲区(L1)与介质密度有关。故不同介质有不同的盲区。
